Carregando...

Redes Sociais

PROJETO

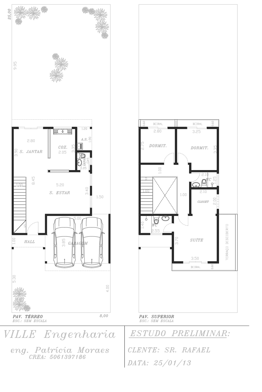
Linda casa no Condomínio Villagio Milano, com 3 dormitórios (sendo 1 Suite), 3 banheiros em um total de 134m² de área construída. Área Gourmet, Pé direito duplo, Mezanino, Varanda em todos os dormitórios, Closet, Porcelanato na casa toda.

2 vagas

1 unidades

134 m²

Casa M55
Casa M55

LOCALIZAÇÃO

Um condomínio completo na zona oeste, portaria 24 horas, ronda motorizada, salão de festas, piscinas, quadra poliesportiva, espaço fitnes e segurança para sua família;

  • Sobrado com Mezanino

ESTÁGIO DA OBRA

Total concluído

100

0

Previsão de entrega: ENTREGUE

Tem Interesse?
Preencha o formulário que entraremos em contato com você