Carregando...

Redes Sociais

PROJETO

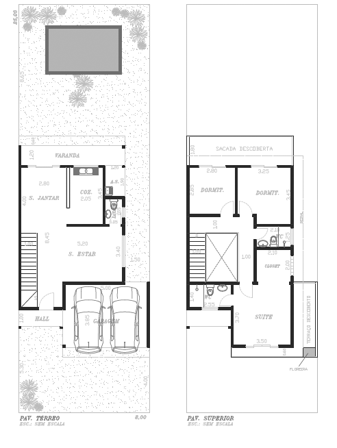
Linda casa no Condomínio Villagio Milano, com 3 dormitórios (sendo 1 Suite), 3 banheiros em um total de 170m² de área construída. Piscina, Área Gourmet, Solário e Porcelanato na casa toda.

2 vagas

1 unidades

170 m²

Casa F04
Casa F04

LOCALIZAÇÃO

Um condomínio completo na zona oeste, portaria 24 horas, ronda motorizada, salão de festas, piscinas, quadra poliesportiva, espaço fitnes e segurança para sua família;

  • Sobrado com Piscina F04

ESTÁGIO DA OBRA

Total concluído

100

0

Previsão de entrega: ENTREGUE

Tem Interesse?
Preencha o formulário que entraremos em contato com você